Voll möblierte coole, City-DG-Wohnung, in zentralster Lage mit Lift, Einbauküche ...
Objektdetails
| Straße | Dr.-Friedrichs-Ring | Hausnummer | 21a |
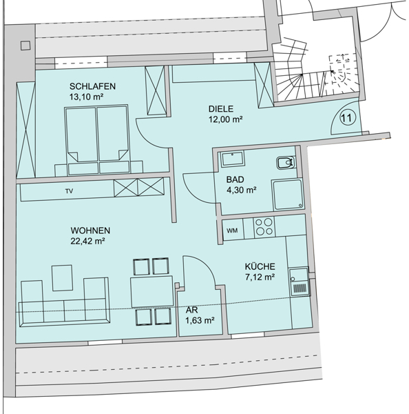
| ImmoNr | 960 | Wohnfläche | 59 m² |
| Zimmer | 2 | Objekttyp | Dachgeschoss |
| Baujahr | 1936 | Zustand | Saniert |
| Energieausweis | es besteht keine Pflicht! | wesentlicher Energieträger | Fernwärme |
| Etagenzahl | 5 | Fahrstuhl | Personenaufzug |
| Küche | Ja | Küche | Einbauküche |
| Verfügbar ab (Text) | 01.04.2026 | verfügbar ab (Datum) | 06.04.2026 |
| Haustiere | nach Vereinbarung | Kaltmiete | 700 € |
| Nebenkosten | 176 € | Warmmiete | 876 € |
| Kaution | 2 KM |
Super schicke Wohnung im Herzen der Stadt stilvoll möbliert, modernes Bad mit Dusche, Einbauküche,
Lage:Der Dr.-Friedrichs-Ring in Zwickau ist ein, mit einer Vielzahl von repräsentativen Villen und villenartigen Gebäuden bebauter, grüner Gürtel rund um die Zwickauer Innenstadt. Entlang der schönen Ringpromenade mit ihrem alten Baumbestand, finden Sie eine Vielzahl von Dienstleistungen, wie Banken, Arztpraxen, Kanzleien und Büros sowie Einkaufsmöglichkeiten und viele tolle Restaurants - durch die ideale Lage der Wohnung erreichen Sie alles bequem zu Fuß. Der nahegelegene Schwanenteich und die beliebte Muldenpromenade laden zudem zu jeder Jahreszeit zu herrlichen Spaziergängen in der Natur ein.
Ausstattung:- dunkler Laminatfußboden in den Zimmern
- stilvoll möbliert
- moderne Einbauküche
- exklusives Bad mit Dusche, Designer-Waschtisch
- Abstellraum mit Waschmaschinenanschluss
- Ankleideraum
- Zentralheizung
- Lift
Sonstige Angaben:Stellplatzanmietung in Tiefgarage möglich
2 Kaltmieten Kaution
Ansprechpartner
Frau Silke Kunstmann
Mietwelten
Magazinstraße 8
08056 Zwickau
Tel.: 0375 275 08 03
Fax: 0375 270 10 10
Email: info@mietwelten.de
Homepage: www.mietwelten.de








